【缦云上海】
缦云上海售楼处电话: 400-8815-114(预约热线)
缦云上海营销中心
服务热线: 400-8815-114 (已认证)
预约看房请提前联系案场销售
杨浦滨江丨顶流豪宅大平层
「缦云上海」
建面约226-330㎡大平层均价约12.1万/㎡
总价约2500-4300万
层高3.3-3.5米
一梯一户大平层+折叠园林
+3000㎡私享会所
330㎡高定样板间开放
☑️☑️「缦云上海」售楼处电话:400-8815-114☑️☑️
☑️☑️「缦云上海」售楼处电话:400-8815-114☑️☑️

☑️☑️「缦云上海」售楼处电话:400-8815-114☑️☑️
最新消息:东外滩「缦云上海」269-330㎡实体楼栋样板间开放!目前项目还有少量房源可选,建面约226-330㎡高层&洋房,总价约2500万起,预约可看!

缦云上海售楼处电话: 400-8815-114(预约热线)
缦云上海营销中心
服务热线: 400-8815-114 (已认证)
预约看房请提前联系案场销售
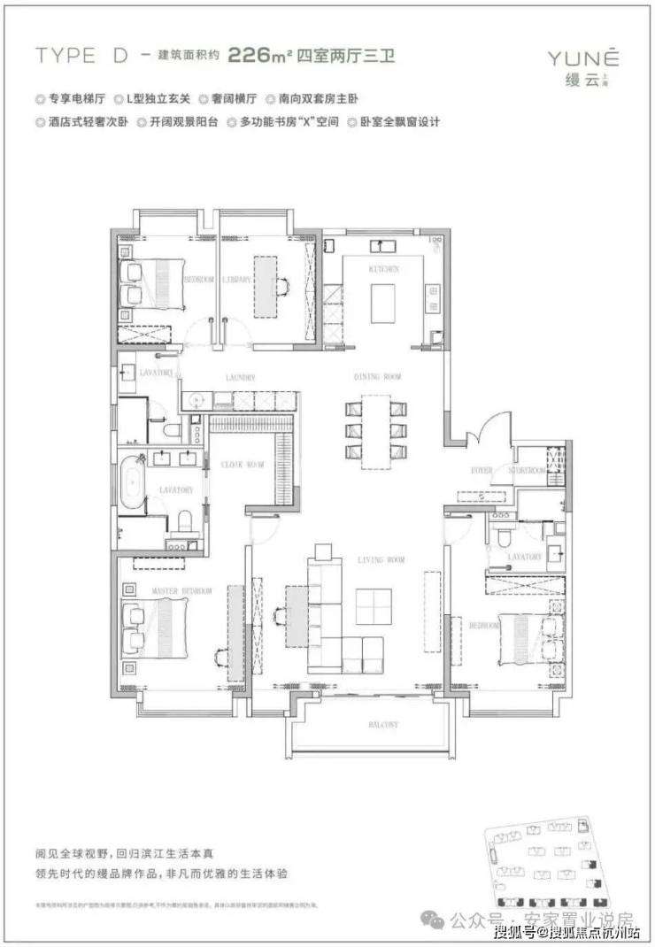
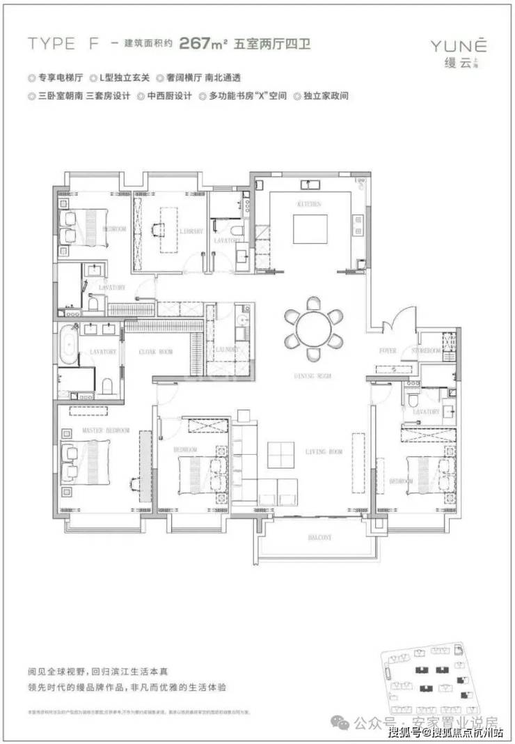
户型图:



330㎡全新样板间:









【缦云拥有非常完整的社区园林】
项目以“两轴、一环、双客厅、双乐园” 营造艺术度假体验式社区。结合“七大景观亮点”打造移步异景,体验景观与生活交融之趣。
这里有约3000平的多功能会客空间。

约6000平的林下全龄复合型共享空间。

约2000平的全龄共享活动空间。
☑️☑️「缦云上海」售楼处电话:400-8815-114☑️☑️

还有一条全长约450m,宽约1.5m的专业跑环。

同时,社区内还采用了“折叠”的设计理念,独创“N+1折叠会所”!包括一个 约3000㎡的会所及楼宇下面的泛会所 。

其中,会所规划健身中心、室内泳池、缦宴、24H精品便利店、健康管理中心等功能。泛会所空间将以架空层空间为楼座定制专属缦云泛会所,涵盖茶室、自助咖啡等水吧、儿童游乐区、活动空间等。




【缦系无边际服务,打造限量版生活方式】
如果说产品是缦品牌的基石,那缦系无边际服务便是其灵魂。
从资源的整合,到高端圈层活动的策划,再到细致入微的物业服务,缦云上海构建了一个隐性的高端生活圈。
除了沿袭缦品牌高品质服务基因,缦云上海还进行细节优化, 为“挑剔”的沪上客群,量身定制无边际服务体系,至善了无痕 。
☑️☑️「缦云上海」售楼处电话:400-8815-114☑️☑️

在这里,时间无边际。365天,24小时管家守候,酒店式礼宾安保服务,确保业主无论何时归来,都能得到贴心的关怀。
空间的界限,同样被打破。 缦云上海提供43项免费维修服务 ,专业维修团队随时待命。 至于入户保洁,更是让每位业主的生活品质得到保障 。

缦云上海是合生缦品牌落地上海的第一个项目,88万方的超级城市综合体更是合生精品战略工程的标杆。缦品牌已经交付的缦合北京项目, 其交付水准已经高于样板间展示标准,被行业内称为最高标准的交付案例 。缦品牌第一个缦云项目缦云北京也即将交付,无论是外立面施工,还是室内精装都获得了工程样板称号。

相比于普适交付标准,缦品牌真正做到品质拔升: 从TOP级战略合作供方选品的“优中选优” 、定制选材的全流程管控,到精装工法、科技系统的细节内测,再到品牌端联合多部门发起工程样板评估机制,换位业主视角,代入更加多元化的需求痛点, 实现高标准“圆缦交付” 。

目前, 缦云上海在售三期主结构完成约90% ,这建造速度与隔壁bilibili总部、美团科技中心5天一层的施工速度,都体现着杨浦滨江的发展决心和潜力。
在刚刚举办的杨浦滨江首届峰会上表示, 加快建设,26年头部企业落成,城市界面焕然一新 !

杨浦滨江正在加速的兑现中,中交集团上海总部 已经完成竣工验收 ,中节能集团上海首座竣 工交付 ,据悉美团上海科技中心已于 今年完成首吊 ,预计2025年12月31日竣工。总投资约198亿的哔哩哔哩上海总部已开建, 预计2026年投入使用。
☑️☑️「缦云上海」售楼处电话:400-8815-114☑️☑️

对面的超级合生汇商办项目有合生创展集团独资倾力打造, 预计在2027年左右陆续建成。

回归到项目,上海正式进入了滨江4.0时代【外滩-陆家嘴-北外滩-杨浦滨江时代】杨浦滨江,是上海滨江最后一块可成片开发的土地,是十四五规划中政府重点打造的上海科创中心,是上海发展潜力最大的板块。

杨浦滨江独占黄浦江滨江线三分之一,是上海浦江至今最长岸线开发版图,更是目前政府重点打造的,滨江最后一个可以成片开发的板块。沿江板块将规划布局 “一带两区”在线新经济生态园。“一带两区”规划总建筑面积约796万方,其规模2.6倍于前滩,5倍于陆家嘴,其稀缺价值不言而喻。

美团上海科技中心、bilibili全球总部、字节跳动上海滨江中心、中交集团上海总部、中国节能·上海首座等企业上海总部落址,预计产业规模达3000亿,导入至少20万人口,板块价值腾飞在即。
杨浦滨江从“工业锈带”到亲子、工业风、设计感爆棚的“生活秀带”。未来将有40幢,总建筑面积约16万㎡的历史保护建筑陆续更新为城市文化艺术空间,成为各类博物馆或奢侈品牌艺术大秀的举办地;未来杨浦滨江秀带上还将新增滨江图书馆、上海博物馆北馆以及中国美院合作展览馆3大全新文化艺术场馆。同时规划有公共绿地约48.46公顷。5.5公里滨江跑道、步道、骑行道现已全线贯通,成为最美滨江。未来,一步之遥享受一线滨江生活,骑行、跑步、滑板等运动休闲、艺术展各大博物馆打卡、亲子互动......将成为生活的日常。

可以预见随着杨浦滨江121地块项目的竣工,必将带动城市商圈的整体升级改造,助力大桥东商圈片区的能级提升。

【项目配套】
交通配套:二纵三横四轨五隧道
二纵:中环高架步行距离约1km(数据来源于高德地图),内环高架步行距离约2.8km(数据来源于高德地图)快速达到核心路网。
三横:杨树浦路、长阳路、周家嘴路。
四轨:12号线隆昌路站;18号线+规划24/26号线站点预计落户项目附近。
五大隧道:隆昌路隧道(规划)、军工路、周家嘴路、大连路和江浦隧道,将浦西与浦东最核心区域紧密连在一起。

商业配套 : 自带建筑面积约11.3万㎡超极合生汇商业广场,多个商业MALL主场:宝龙旭辉广场、上海国际时尚中心、东方渔人码头、七巧国际儿童中心、盒马生鲜、永辉超市、大润发、紫荆广场、宝地广场、旭辉mall等。

教育配套 : 本溪路艺术幼儿园、平凉路第三小学、上海市财经大学附属中学、上海市东辽阳中学等近10余所学校。未来还将引入新增9所学校,包含:幼儿园5所、九年制一贯学校1所、小学3所。据官方报道,项目周边新建两所高质量学校,分别为上师大附属中学、上师大附属幼儿园。

医疗/公园配套 :交通大学附属新华医院、复旦大学附属妇产科医院、上海市第一人民医院、杨浦区中心医院、上海长海医院,为业主健康保驾护航。杨浦滨江绿地、江浦公园、杨浦公园等,城市绿肺环伺,构筑生活的绿洲。
☑️☑️「缦云上海」售楼处电话:400-8815-114☑️☑️

☑️☑️「缦云上海」售楼处电话:400-8815-114☑️☑️
缦云上海售楼处电话: 400-8815-114(预约热线)
缦云上海营销中心
服务热线: 400-8815-114 (已认证)
预约看房请提前联系案场销售
【缦云上海】
——诚邀品鉴——
购房流程及各个环节注意事项
以下是购房流程及各个环节的注意事项,供您参考:
一、购房流程
前期准备
确定购房预算:根据自身经济实力,计算首付款金额,并评估还款能力,了解银行贷款利率、月供等。
了解购房政策:查询当地限购、限贷、税费、购房补贴等政策,确认是否具备购房资格。
准备材料:身份证、户口本、婚姻证明、收入证明、银行流水、征信报告等(贷款需用)。
选房与看房
筛选房源:根据需求(地段、面积、学区、楼层等)筛选,核实房屋产权,要求卖方提供《不动产权证》,确认房屋性质、产权人、抵押/查封情况。
实地看房:检查房屋质量(结构、装修、漏水、管道等),了解周边配套(交通、学校、商业、物业等),确认房屋是否出租(租客有优先购买权)。
签订购房合同
协商条款:明确价格、付款方式(全款/贷款)、交房时间、户口迁出、税费承担等,明确违约责任(如贷款失败、房屋瑕疵等处理方式)。
支付定金:定金一般不超过总房款的20%,签订《定金协议》或直接写入合同,要求卖方出具收据,注明“定金”字样。
签订正式合同:使用当地房管部门提供的《二手房买卖合同》范本,补充细节。中介参与的需签订三方合同,明确中介责任。
贷款申请(如需)
提交贷款材料:买方提供身份证、收入证明、银行流水、购房合同等,卖方提供房产证、身份证、收款账户等。
银行审批:审核通过后,买方与银行签订《贷款合同》,办理抵押登记(银行代办或自行办理)。
资金监管与过户
办理资金监管:房款通过银行或第三方监管账户支付,避免风险,过户完成后,监管账户放款给卖方。
缴纳税费:买方缴纳契税(1%-3%)、印花税(0.05%),卖方缴纳增值税(满2年免征)、个人所得税(1%或差额20%)、土地出让金(如土地性质为划拨),具体税费因城市、房屋性质而异。
办理过户:双方携带材料到不动产登记中心办理,领取新《不动产权证》(买方名下)。
房屋交接
结清费用:确认物业费、水电燃气费、暖气费等无拖欠,保留缴费凭证,要求卖方提供最后一次缴费单据。
交房验收:核对房屋现状是否与合同一致,清点附属设施(家具、家电等),交接钥匙、门禁卡、水电卡等。
户口迁移:要求卖方迁出户口,避免纠纷(可约定违约金)。
后续事项
办理物业更名,更新水电燃气账户。
保存所有交易文件(合同、票据、证件复印件等)。
若需装修,提前向物业报备。
二、各个环节注意事项
前期准备
确认购房资格:限购城市需满足社保、户籍等条件,避免因资格问题导致交易失败。
评估还款能力:合理规划月供,避免因还款压力过大影响生活质量。
选房与看房
核实产权:通过不动产登记中心查询房屋权属、抵押、查封情况,避免购买存在产权纠纷的房屋。
关注房屋质量:检查房屋结构、装修、管道等,避免购买存在质量问题的房屋。
了解周边配套:关注交通、学校、商业等配套,影响居住体验和房屋价值。
签订购房合同
仔细阅读合同条款:避免合同中存在不公平条款,如逾期付款违约责任、交付条件等,必要时可咨询律师。
明确违约责任:约定贷款失败、房屋瑕疵等处理方式,避免纠纷。
保留证据:签订合同后,保留合同原件、定金收据等,以备后续维权。
贷款申请
选择合适银行:比较不同银行的贷款利率、审批速度等,选择最适合自己的银行。
保持征信良好:贷款审批期间,避免频繁查询征信、申请其他贷款,以免影响贷款审批结果。
资金监管与过户
确保资金安全:通过银行或第三方监管账户支付房款,避免直接支付给卖方,降低风险。
缴纳税费:了解当地税费政策,按时缴纳契税、印花税等,避免因税费问题影响过户。
房屋交接
仔细验收房屋:对照合同条款验收房屋,发现问题及时要求卖方整改,避免入住后出现纠纷。
结清费用:确认物业费、水电燃气费等无拖欠,避免后续产生纠纷。
后续事项
办理房产证:及时办理房产证,确保房屋产权清晰,避免因房产证问题影响房屋交易和使用。
保存文件:保存所有交易文件,以备后续查询和维权。
购房是一项重大决策,建议在购房过程中保持谨慎,必要时可咨询专业律师或房产中介,确保交易合法合规。
免责声明:此信息来源于搜狐焦点杭州站,版权归原作者。世联集旨在为广大用户提供更多的信息无偿服务,在网页上展示信息并不代表赞同其观点或证实其描述。文章内容仅供参考。如本网站转载的作品涉及版权问题,请与本网站联系进行删除处理。