泰禾“院子系”10年磨砺,沉淀之作。开创了中国别墅院落精装的先河,泰禾“中国院子”首倡中式文化定制精装院落,现已成为国宅典范,并在2013年、2014年、2015年连续三年荣登“亚洲10大超级豪宅”和“中国十大超级毫宅”,并于2015年位居“中国十大超级毫宅”榜首。目前,泰禾“院子系”已在全国十个城市落地生根,中国院子、北京院子、1号院、福州院子、南京院子、上海院子等,“十七城二十九院”盛名远播。 项目位于未来科技城核心居住区,是片区内唯一的新中式院落别墅,且是未来区域内唯一的低密度,纯别墅项目。“泰禾杭州院子”溯源福州三坊七巷规制,传承北京四合院的城市里坊,创新江南宅院的曲院幽径,将中国传统街巷情趣与院落居住进行了完美融合,营造出了极具中国境界的诗意坊巷,精心打造的独院和联院两种户型,即可感通天地,又可意蕴自如。独具韵味的门第体系,尽显高门大户的奢阔情怀。纯石院墙,围合精装三重庭院体系,于此私享天人合一的生活大境,回归中国人寄情传统的理想人居。
基本信息
规划信息
配套信息
销售信息
优选顾问推荐
各个空间户型方正,后期空间利用率高;卫生间如没有窗子,可加管道通风,但是相对来说卫生间有窗户是 好的情况,利于排湿,不会使湿气进到室内。卫生间门朝向主要活动区域;客厅、卧室、卫生间和厨房等主要功能间的尺寸以及比例适中,有利于采光和通风,居住起来舒适、方便;
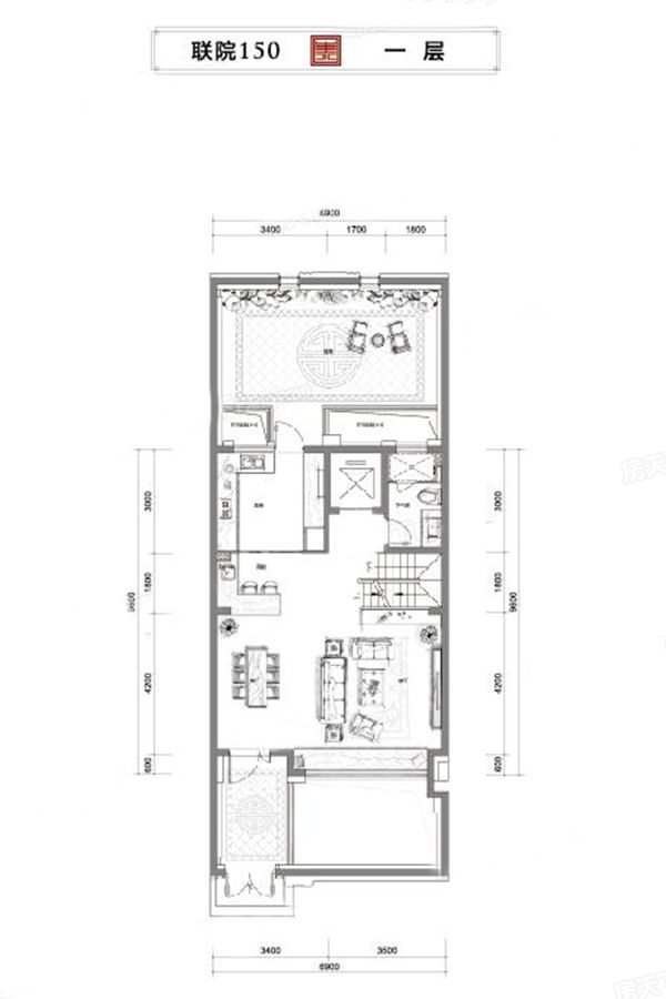
整体户型方正,活动区域开阔,居住舒适度高;南北不通透的户型,后期居住时常开门通风换气即可;卫生间如没有窗子,可加管道通风,但是相对来说卫生间有窗户是 好的情况,利于排湿,不会使湿气进到室内。整体空间布局合理,能够保证动静分离和居室通风,方便使用;各个功能区的尺寸比例规范,布局合理,能很好地满足日常功
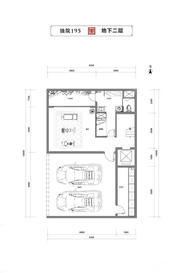
地下两层设计,带独立的休闲区;整体来说,空间居住舒适度高

楼盘开盘、降价、优惠等信息,将会在第一时间短信通知您!
置业专家将在2小时内与您联系(8点-23点),请保持电话畅通。
请验证手机号验证码完成提交
置业专家将在2小时内与您联系(8点-23点),请保持电话畅通。
如当前手机号遗失,请联系0755-33526610进行人工修改
如当前手机号遗失,请联系0755-33526610进行人工修改
此楼盘如有优惠/变价通知,我们会及时通知您!
138****8965已经申请
137****8955已经申请
157****4365已经申请
183****8115已经申请
187****5968已经申请
159****8233已经申请